Volajte
0915 880 846

Registračné sídlo pre s.r.o.

Registračné sídlo pre s.r.o.

179,- €/mes. 5.392,55 Sk/mes.
+ 99,00 € Energie


sledovať ponuku Priestor s umývadlom - 16 m2 - Moyzesova, Košice



Štát: Slovensko
Okres: Košice - Staré Mesto
Mesto: Košice - mestská časť Staré Mesto
Ulica: Moyzesova 36

Druh: Kancelárie
Typ: prenájom


Poschodie2/vyššie poschodie
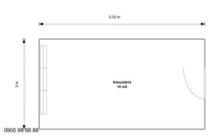
Celková rozloha16 m²
Úžitková plocha16 m²
Statusaktívne

Priestor s umývadlom - 16 m2 - Moyzesova, Košice

Dáme do prenájmu priestor o výmere 16 m2 na Moyzesovej 36 v Košiciach na 2. poschodí. Ide o 1 miestnosť. V priestore je umývadlo.

Nájomné: 179 eur/mes.
Vodné, stočné, kúrenie: 99 eur/mes.
El. energia: podľa skutočnej spotreby
Depozit: 0 eur

Všetky ceny sú už s DPH.

Bezplatný wi-fi internet.

Voľné od ihneď.

Obhliadky: 0915 880 846







foto

Marcel Jurko

hovorím po slovenskyJa govorim hrvatskiI speak englishmluvim česky


konateľ

Telefón: 0915880846
E-mail: marcel.jurko@bergerreality.sk

všetky realitné ponuky makléra




Realitná kancelária je overeným partnerom www.ZoznamRealit.Sk